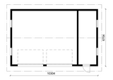
G-H-S-66x102-2-K

Normaalihinta €600,00

Sisältää veron.

Mallin ominaisuudet

  • Kerrosala 69 m2
  • Sisäkorkeus 3175 mm
  • Harjakatto 1:3
  • Autotallin ovi 30x28
  • Käyntiovi 9x21
  • Ikkunat 9x6
  • Eristetyt / kylmät rakenteet tarpeiden mukaisesti
  • Vaakapanelointi / pystypanelointi tarpeiden mukaisesti
  • Vesikate tarpeiden mukaisesti

Lupakuvien toimitussisältö

Lupakuvat sisältävät pohjapiirustuksen, julkisivupiirustukset ja leikkauspiirustuksen, sekä valinnaisen asemapiirroksen piirtopalvelun. Suunnitelmat toimitetaan tilaajalle sähköpostitse pdf ja dwg muodossa, sekä valinnaisesti myös paperikopioina.

Mallin muokkaus mieleiseksi 

Mallia voidaan muokata mieleiseksi suunnitelmien rakenneratkaisuiden mukaisesti.
Tutustu rakenneratkaisuihin ja kartoita muutosmahdollisuudet

Tilauksen eteneminen 

Lupakuvien tilaamisen jälkeen suunnittelija on tilaajaan yhteydessä viiden (5) arkipäivän sisällä ja kartoittaa muutostöiden tarpeen, sekä kohdekohtaiset tiedot, joiden mukaisesti suunnitelmat täydennetään. 

Toimitusaika

Suunnitelmat luovutetaan tilaajalle kahden (2) viikon sisällä tilaamisesta. 

Tilaajan vastuut 

Suunnitteluun tarvittavien lähtötietojen selvittäminen ja hankkiminen on tilaajan vastuulla. Tilaaja on myös velvollinen varmistamaan, että suunniteltava rakennus on mahdollista rakentaa rakennuspaikalle. 

Lisätyöt

Lupakuvien luonnokset hyväksytetään tilaajalla ennen suunnitelmien luovutusta. Luonnosten hyväksymisen jälkeen tehtävät muutokset lupakuviin on mahdollista tilata lisätöinä. Lisätöistä sovitaan aina erikseen ja veloitus määräytyy muutostarpeiden laajuuden mukaisesti. 

Rakennussuunnittelijan työt 

Toimimme rakennushankkeissa rakennussuunnittelijoina suunnittelemiemme rakennusten osalta. 

Pääsuunnittelijan työt

Emme toimi rakennushankkeissa pääsuunnittelijoina.